Nos programmes

Nous construisons des écopark : parcs d'activités autonomes en énergie BEPOS (bâtiment à énergie positive) avec gestion optimale des flux d'énergies renouvelables.
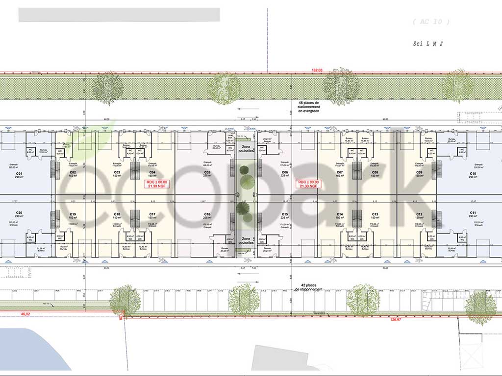
Les bâtiments sont composés de bureaux équipés avec superficies entre 20 et 250 m2, et des entrepôts spacieux avec quai de déchargement sur certains locaux.
Les écopark sont munient d'ombrières solaires photovoltaïques avec bornes de recharge électrique et d'espaces "rencontre" paysagés et arborés.

Détails du programme

  • Livraison : 2027
  • Emplacement : TOULOUSE (31000), Haute-Garonne
  • Production solaire : 1 GWh/an
  • Bornes de recharge : 22
  • IRVE rapides 50 kW : 2
  • Emprise bâtiment 1 : 1 804 m2
  • Emprise bâtiment 2 : 1 804 m2
  • Divisibilité : 20 LOCAUX D'ACTIVITÉS

ÉCOPARK 11

L’Écopark 11 à Toulouse s’intègre dans le développement d’espaces d’activités éco-responsables en Occitanie, offrant aux entreprises un cadre moderne et durable. Avec ses bâtiments BEPOS+, ses toitures photovoltaïques, ombrières solaires et espaces de bien-être, il assure une production d’énergie renouvelable tout en optimisant l’efficacité énergétique. Situé dans un pôle économique stratégique, il favorise la transition énergétique des entreprises tout en renforçant l’attractivité économique de la région toulousaine.